開発設計

良好な宅地を造り出すために、道路、水路などの社会基盤整備と宅地造成を行う区画整理事業をはじめとし、住宅、工場、学校、商業施設、廃棄物処理施設などのまちづくりに係る開発事業において、良好な宅地および事業用地などを造り出すために、災害、交通等に対する安全性、土地利用、活用に対する経済性、快適性を追及した、開発計画の提案、各種設計を行います。
また、事業の円滑な推進に向け、効率的に許認可申請等の手続きを行います。

わたしたちは、計画、構想段階から、業務に参画し、対応すべき課題と対応方法を提案することにより、合理的な事業推進をサポートいたします。

多度小中一貫校整備事業 現場施工中(2025年10月)

主な技術サービス

土地区画整理事業および各種開発事業において、良好な宅地および事業用地などを造り出すために、災害、交通等に対する安全性、土地利用、活用に対する経済性、快適性を追及した、道路施設、用排水施設、造成計画、雨水調整池などの各種設計を行います。

工業団地など事業用地の適地選定、開発可能性調査、開発計画(基本・予備・実施)などを行います。

  • ・円滑な事業推進を支援するための施工計画立案業務
  • ・区画整理事業における工事発注支援業務
  • ・区画整理事業における発注された工事の品質確保のための施工管理業務
  • ・土壌汚染対策工事の設計業務
  • ・各種許認可申請手続き(都市計画法、森林法、宅地造成等規制法、砂防法など)
  • ・既存施設更新、改築に係る計画、設計、各種手続き
  • 主な事業実績

    都道府県 三重県
    発注者 桑名市
    プロジェクト名 多度地区小中一貫校整備事業
    実施期間 令和5年1月〜令和9年3月
    プロジェクト内容

    本プロジェクトは、桑名市における子供達をとりまく社会の変化や子供達の変容を踏まえ、義務教育9年間を通した系統性・連続性のある効果的かつ魅力的な教育環境づくりを行うため、一体型小中一貫校での教育を円滑に推進すべく実施されている。

    多度地区の小中一貫校整備事業においては、基本構想・基本計画を効果的かつ効率的に実現するため、高度な技術や専門的な知識、豊富な経験等を有する民間事業者への設計施工一括方式が採用され、前田建設工業株式会社、株式会社石本建築事務所、水谷建設株式会社、日本工営都市空間株式会社による共同企業体として事業者選定を受けた。弊社は、造成設計、測量、地質に関する調査設計全般を担っている。

    当社の役割 造成設計(基本設計・実施設計)、路線測量、造成工事管理業務
    開発エリアの全景(令和7年10月撮影)
    開発エリアは、多度山を臨むロケーション(令和7年10月撮影)
    都道府県 愛知県
    発注者 長久手市
    プロジェクト名 名古屋都市計画事業 長湫南部土地区画整理事業
    実施期間 平成10年11月〜平成26年3月
    プロジェクト内容

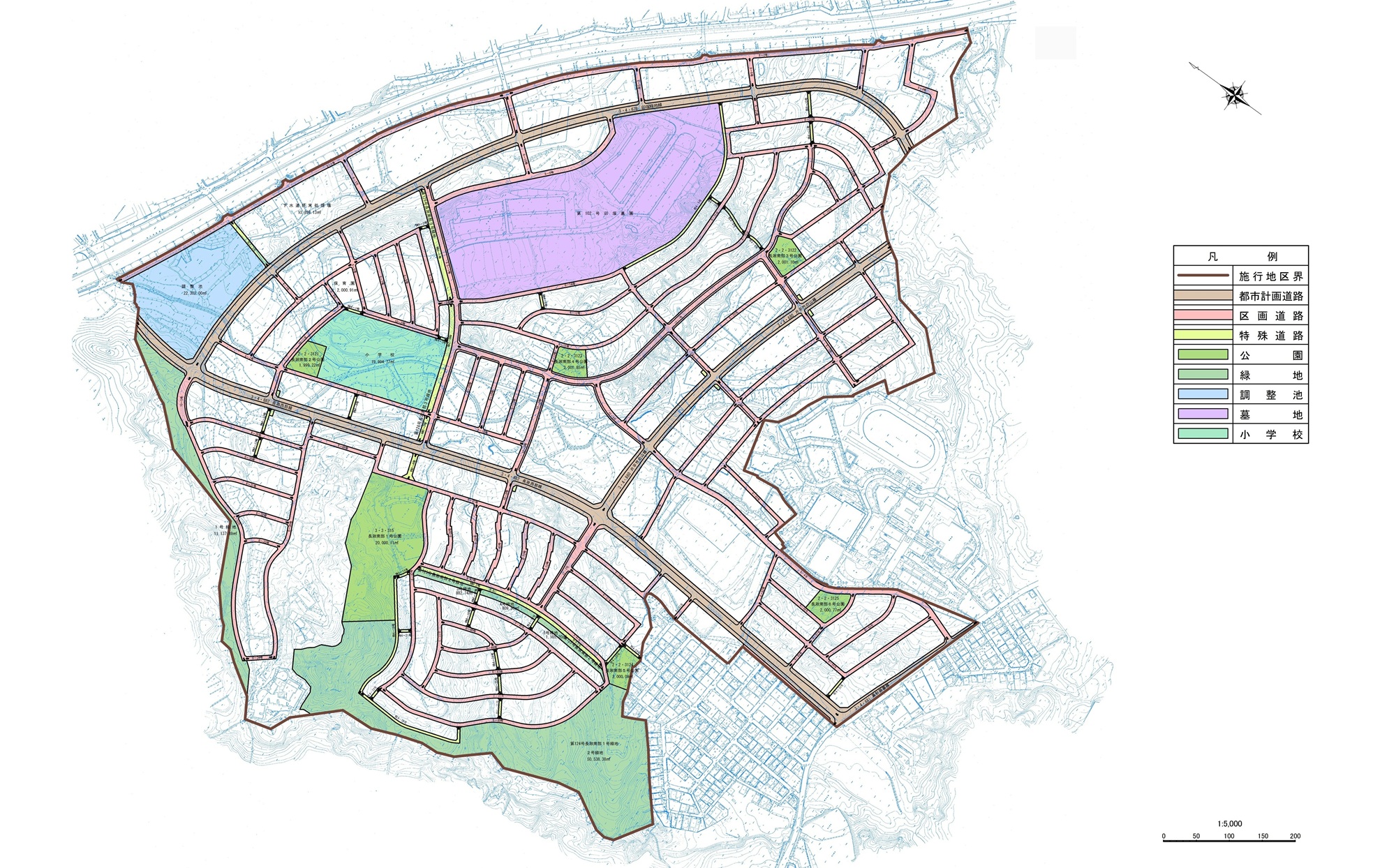
    本地区は長久手市の南部に位置し、長久手市役所の南方約2km、東名高速道路名古屋ICの南東約1kmに位置する面積約98.2haの土地区画整理事業地区である。

    道路計画は、周辺既成市街地と本地区を結ぶ都市計画道路長湫西部線のほか、香久山線、高針御嶽線、片平竹の山線、卯塚緑地線を設け、これら都市計画道路を骨格として、その他巾員6~12mの区画道路を配置し、道路の段階構成、交通円滑化を図った。

    公園・緑地計画は、近隣公園を猪高緑地の尾根線上に配置し、周辺に計画する緑地と合わせて緑地空間の核と位置づけた。また、街区公園を歩行者・緑のネットワークや誘致距離を考慮して5箇所配置した。

    土地利用計画は、戸建中心の住宅地を形成し、都市計画道路沿道については、生活利便施設の立地促進を計画的に実現した。また、公園・緑地計画と相まって、緑豊かな潤いある市街地形成を実現した。

    当社の役割 基本構想、基本計画、事業計画の事業化前の計画・合意形成に始まり、事業化後の測量、換地設計、工事設計、補償調査、事業運営に渡り、事業全体をワンストップで技術支援した。
    長湫南部地区の全景
    長湫南部地区の事業計画設計図
    1. ホーム
    2. 事業紹介
    3. 開発設計
    ページトップへ戻る